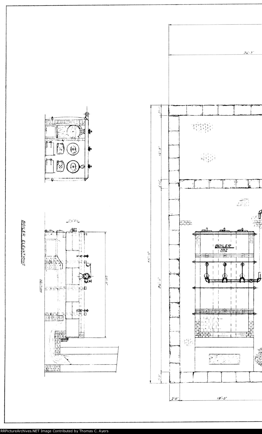
| Here is the first of three frames showing a cross section of Engine House #6 that's included in the monograph entitled "Sylvester Welch's Report On The Allegheny Portage Railroad: 1833." It was published by William H. Shank in June of 1988. Drawn by Fred R. Connacher. |
| Date:
6/21/1988 |
Location:
Cresson, PA |
Views:
62 |
Collection Of:

Thomas C. Ayers |
|
Author: Thomas C. Ayers
|
 |
| Picture Categories: Steam |
This picture is part of album: APR: "Allegheny Portage Railroad" ~ 1833 |